MG
Dialogue urbain
Dialogue urbain
Dialogue urbain
Dialogue urbain
Dialogue urbain
Dialogue urbain
Dialogue urbain
Dialogue urbain
Dialogue urbain
Dialogue urbain
Dialogue urbain
Dialogue urbain
Dialogue urbain
Dialogue urbain
Dialogue urbain
Dialogue urbain
Dialogue urbain
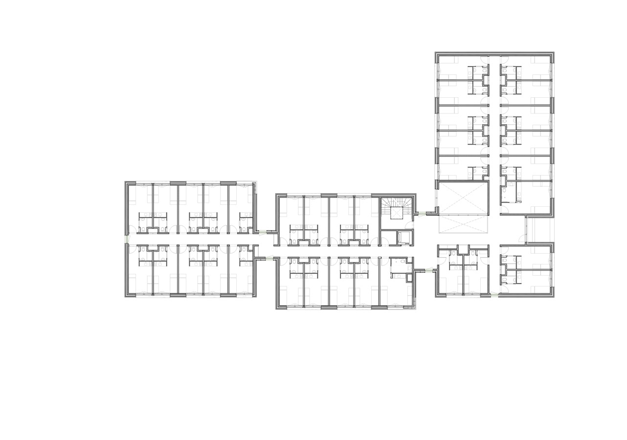
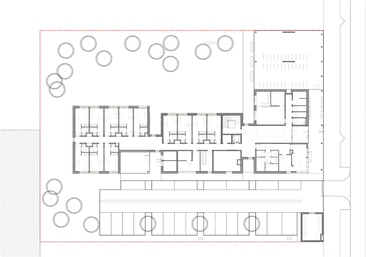
Résidence de 100 logements
— Élancourt (78)
Maître d’ouvrage

CDC Habitat Adoma

Aménageur

SQY

Maître d’œuvre

MGAU Michel Guthmann et associés
Architecture & Urbanisme
avec
Facéa BET TCE ;
et AFL acousticien

Programme

100 logements

Surface

2557 m² SDP

Montant des travaux

4,8 M€ HT

Calendrier

Projet lauréat novembre 2015
Projet livré janvier 2019

Certifications

Certification Cerqual
RT2012
Cerqual « NF Habitat HQE »

Autres projets