MG
Plateaux libres
Plateaux libres
Plateaux libres
Plateaux libres
Plateaux libres
Plateaux libres
Plateaux libres
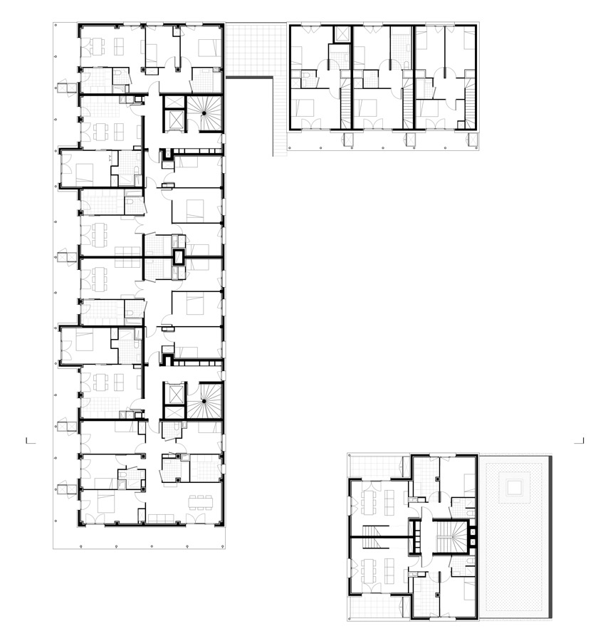
ZAC de Moulon, Lot NF2A
— Gif-sur-Yvette (91)
Maître d’ouvrage

SEQENS

Maître d’oeuvre

MGAU Michel Guthmann et associés
Architecture Urbanisme
avec
Sylva Conseil, BET structure
Eléments Ingénieries, BET fluides
AXIO, économiste
AIDA, BET acoustique
BASE, paysagiste

Programme

42 logements collectifs / intermédiaires et une maison médicale

Surfaces

Logements: 2 800 m² SDP
Maison médicale: 430 m² SU

Montant des travaux

6,8 M€ HT

Calendrier

Projet lauréat septembre 2020
APD  juin 2021
PC obtenu en décembre 2021

Certifications

NF Habitat HQE Passeport Excellent
Label E3C1 – 20%
Label BBC Effinergie 2017
Bâtiment biosourcé de niveau 2

PROJET BIM

Autres projets