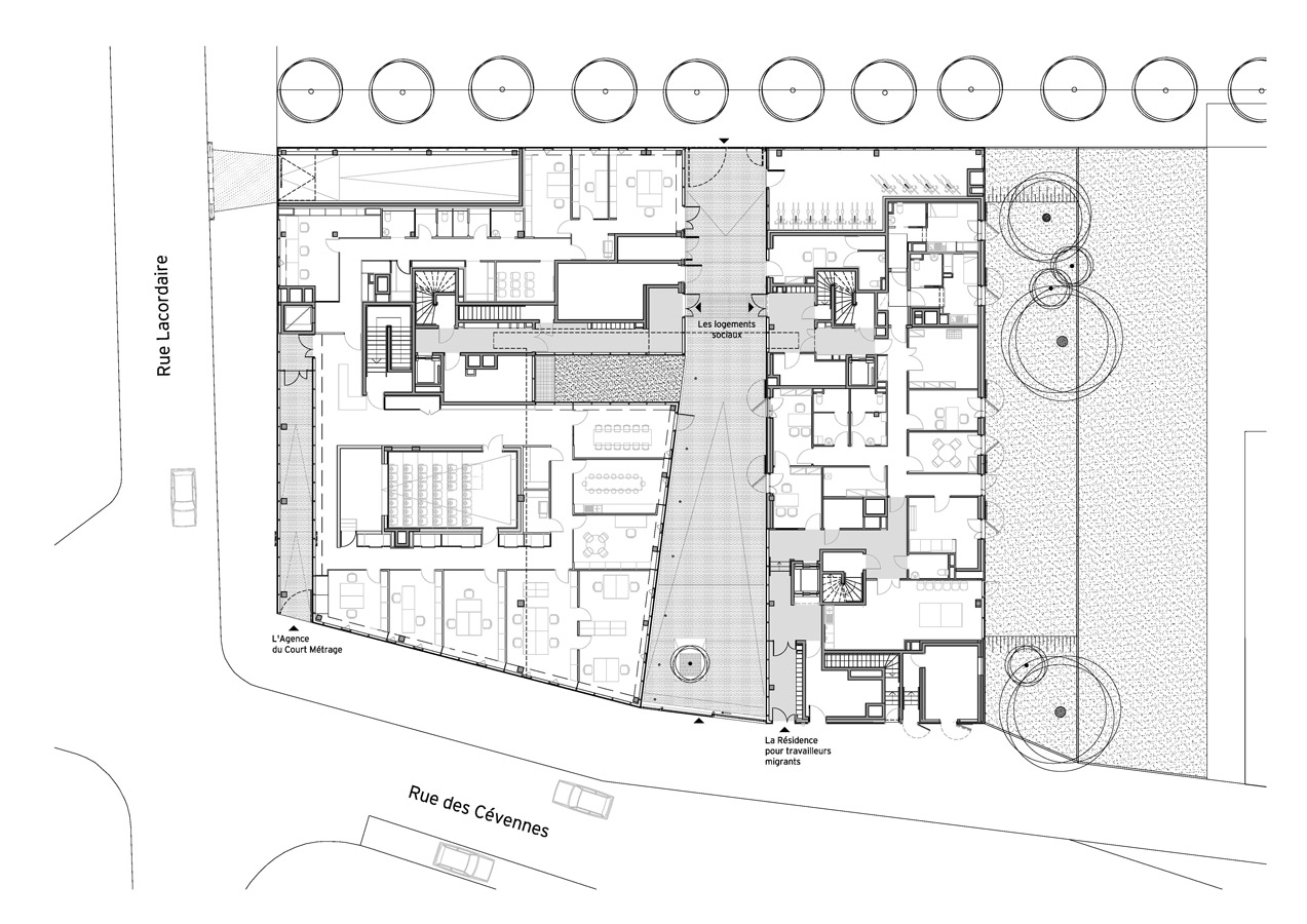
L’Îlot Poreux
ZAC Seine Paris Rive Gauche, Lot B1 B1-3
Paris 13 (75)
RIVP
L’Agence du court métrage
SEM PariSeine
Urbaniste: Paul Chemetov
MGAU Michel Guthmann et associés
Architecture & Urbanisme
avec
CETBA, BET TCE, économie et HQE;
Alexandra Verga, coloriste;
SA Paysage, plantations
Hervé
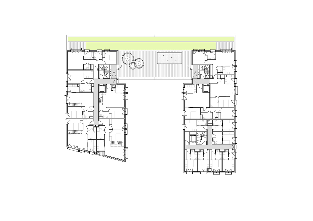
Ensemble immobilier : 57 logements sociaux, 49 studios pour travailleurs migrants
Agence du Court Métrage : bureaux, espaces de travail, galerie d’exposition, salle de cinéma de 42 places
6 500 m² SHON
12 M€ HT
Projet lauréat octobre 2010
PC obtenu en octobre 2011
Projet livré janvier 2014
Certification Cerqual Habitat & Environnement
Plan Climat Ville de Paris
Label BBC Effinergie